©2025 architektenwerkSTADT

Planung Baustelle

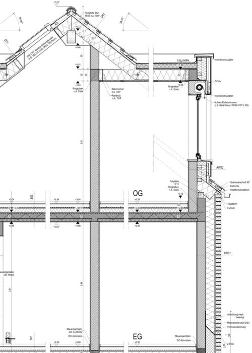
NEUBAU

WOHNHAUS

©2025 architektenwerkSTADT

Baustelle Planung

NEUBAU

WOHNHAUS

GebäudeartMischnutzung Nutzung3 WohneinheitenSeminarräume ProjektstatusFertiggestellt